高灵敏度大流量蒸汽减压阀
- 销售:
- 销售:
- 传真:
详情介绍
- 产品介绍
- 服务承诺
- 订货流程
YGa43H高灵敏度大流量蒸汽减压阀由主阀和导阀两部分组成。主阀主要由阀座、主阀盘、活塞、弹簧等零件组成。导阀主要由阀座、阀瓣、膜片、弹簧、调节弹簧等零件组成。本产品在普通减压阀基础上作了很大改进,加大了活塞面积,改变了节流结构。改变了密封形式,加大了过流面积等等,从而在提高灵敏度、流量、寿命等方面大大改善了性能。
YGa43H高灵敏度大流量蒸汽减压阀主要用于蒸汽管路,适用于流量大流量变化大,进口压力变化大的蒸汽管路。
主要技术参数
公称压力(Mpa) | 1.6 | 2.5 | 4.0 | 6.4 | 10.0 | 16.0 |
壳体试验压力(Mpa)* | 2.4 | 3.75 | 6.0 | 9.6 | 15.0 | 24 |
密封试验压力(Mpa) | 1.6 | 2.5 | 4.0 | 6.4 | 10.0 | 16.0 |
高进口压力(Mpa) | 1.6 | 2.5 | 4.0 | 6.4 | 10.0 | 16.0 |
出口压力范围(Mpa) | 0.04-1.0 | 0.05-1.6 | 0.08-2.5 | 0.2-3.5 | 0.5-3.5 | 0.5-4.5 |
压力特性偏差(Mpa)△P2P | GB12246-1989 | |||||
流量特性偏差(Mpa)P2G | GB12246-1989 | |||||
小压差(Mpa) | 0.07 | 0.1 | 0.15 | 0.4 | 0.5 | 0.8 |
渗漏量 | GB12245-1989 | |||||
*:壳体试验不包括膜片、顶盖
主要零件材料
零件名称 | 零件材料 |
阀体 阀盖 底盖 | WCB |
阀座 阀瓣 | 2Cr13 |
缸套 活塞 | 铝铁青铜 |
膜片 | 1Cr18 Ni9 |
活塞环 | 合金铸铁/对位聚苯 |
导阀座 导阀杆 | 2Cr13 |
主阀弹簧 | 50CrVA |
导阀主弹簧 | 50CrVA |
调节弹簧 | 60Si2Mn |
流量系数Cv
DN | 50 | 65 | 80 | 100 | 125 | 150 | 200 | 250 | 300 | 350 | 400 | 500 |
Cv | 1 | 2.5 | 4 | 6.5 | 9 | 16 | 25 | 36 | 64 | 100 | 140 | 250 |

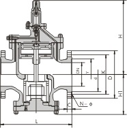
主要外形尺寸
公称通径DN | 外 形 尺 寸 | |||
L | H | Hl | ||
1.6/2.5MPa | 4.0MPa | |||
15 | 160 | 180 | 265 | 85 |
20 | 160 | 180 | 265 | 85 |
25 | 180 | 200 | 280 | 95 |
32 | 200 | 220 | 280 | 95 |
40 | 220 | 240 | 290 | 105 |
50 | 250 | 270 | 300 | 130 |
65 | 280 | 300 | 315 | 145 |
80 | 310 | 330 | 330 | 170 |
100 | 350 | 380 | 405 | 200 |
125 | 400 | 450 | 450 | 225 |
150 | 450 | 500 | 485 | 265 |
200 | 500 | 550 | 570 | 290 |
250 | 650 | 640 | 325 | |
300 | 800 | 740 | 360 | |
350 | 850 | 810 | 395 | |
400 | 900 | 950 | 430 | |
500 | 950 | 1080 | 500 | |
公称通径DN | 外 形 尺 寸 | |||
L | H | Hl | ||
6.4MPa | 10.0/16.0MPa | |||
15 | 180 | 180 | 280 | 100 |
20 | 180 | 200 | 280 | 100 |
25 | 200 | 220 | 300 | 115 |
32 | 220 | 230 | 300 | 115 |
40 | 240 | 240 | 315 | 130 |
50 | 270 | 300 | 340 | 135 |
65 | 300 | 340 | 355 | 150 |
80 | 330 | 360 | 370 | 175 |
100 | 380 | 450 | 205 | |
125 | 450 | 510 | 235 | |
150 | 500 | 555 | 275 | |
200 | 550 | 640 | 300 | |
250 | 650 | 720 | 335 | |
300 | 800 | 830 | 375 | |
350 | 850 | 880 | 410 | |
400 | 900 | 1020 | 445 | |
500 | 950 | 1080 | 515 | |
良好的品质、优良的服务 重庆文博人工智能服务有限公司为你创造更多价值!
“重庆文博人工智能服务有限公司”的期望,不断提升服务质量,精益求精,“真诚的服务”是“重庆文博人工智能服务有限公司”永恒的主题。“重庆文博人工智能服务有限公司”严格按照IS09001-2000 质量体系认证要求,质量严格把关, 责任到人,确保生产、销售、服务的健康运行。加强与用户沟通,竭诚为广大客户提供优良产品,至善至美服务。特此我厂做出以下承诺:
产品标准:
产品严格按照中国GB、HG 标准和美国API等标准设计、制造、验收。密封面硬度达到国家规定要求,宽度超过国家标准。
售前服务:
产品介绍,技术交流,非标产品设计,疑难解答。
售中服务:
守信合同,保证及时供货,随时保持与客户联系。 对特殊或复制的产品,我厂安排技术人员对用户进行产品使用、故障排除
售后服务:
1、“重庆文博人工智能服务有限公司”牌产品品质期为自出厂起12个月,实行“三包”服务(包退、包换、保修)。
2、产品在使用中我厂定期组织技术、质检人员进行访问,征询用户对产品质量、 使用状况、改进意见等方面的反馈, 以便进一步提高产品质量。
3、对用户投诉质量问题,快速作出反应,售后服务人员在24-36小时(省外48小时)赶赴现场。
4、对售后服务,要求用户填写服务后的质量反馈信息表,并作出鉴定意见,以便提高重庆文博人工智能服务有限公司的服务质量。
1、客户如对产品有特殊要求,须在订货合同中提供以下说明:
a、结构长度;
b、连接形式;
c、公称直径、全通径、缩径、管道尺寸;
d、运行介质及温度、压力范围;
e、试验、检验标准及其他要求
2、本厂可根据客户特定要求配置各类驱动装置。
3、如由客户提供确定的阀门类型和型号时,客户应正确说明其型号的含义和要求,在供需双方理解一致的条件下签订合同。
4、期货、订货的客户请先来电函详细告诉所需的阀门型号、规格、数量以及交货时间、地点,并按总的30%预定金或全额货款及时汇入我厂帐户,其余货款待发货前汇入,以便及时安排发货。
订单流程:
1、客户采购清单传真至,或来电咨询
2、收到客户采购清单,为客户提供阀门型号选型与报价(价格清单)。
3、具体商定:交货期、特殊要求等事宜。
订货须知:
1、客户如对产品有特殊要求,须在订货合同中提供以下说明:
|
|||||
|
|||||
2、本厂可根据客户特定要求配置各类驱动装置。
|
|||||
3、如由客户提供确定的阀门类型和型号时,客户应正确说明其型号的含义和要求,在供需双方理解一致的条件下签订合同。
|
|||||
4、期货、订货的客户请先来电函详细告诉所需的阀门型号、规格、数量以及交货时间、地点,并按总的30%预定金或全额货款及时汇入我厂账户, 其余货款待发货前汇入,以便及时安排发货。
|
售中服务:
守信合同,保证及时供货,随时保持与客户联系。
对特殊或复制的产品,我厂安排技术人员对用户进行产品使用、故障排除
售后服务:
1、“重庆文博人工智能服务有限公司”产品品质期为自出厂起12个月,实行“三包”服务(包退、包换、保修)。
2、产品在使用中我厂定期组织技术、质检人员进行访问,征询用户对产品质量、使用状况、改进意见等方面的反馈,
以便进一步提高产品质量。
3、对用户投诉质量问题,快速作出反应,售后服务人员在24-36小时(省外48小时)赶赴现场。
4、对售后服务,要求用户填写服务后的质量反馈信息表,并作出鉴定意见,以便提高“重庆文博人工智能服务有限公司”的服务质量。
声明 |
|